مركز ابحاث العلوم السريرية في امريكا يمتد على مساحة 21580 مترا مربعا تصميم مكتب نورمان فوستر
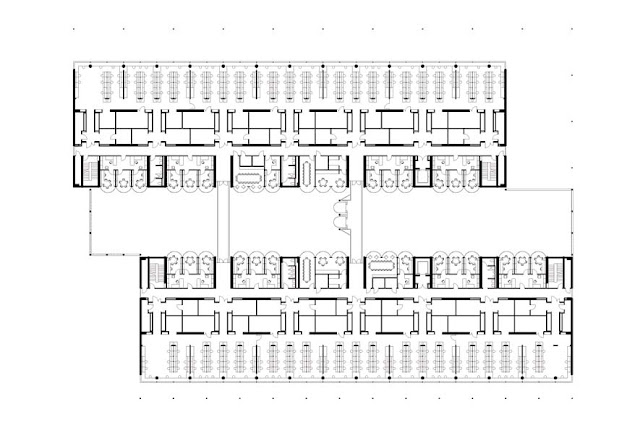
لطالما تم الاعتراف بجامعة ستانفورد على أنها مركز للتميز في العلوم السريرية. ويزود مركز أبحاث العلوم السريرية (CCSR) كلية الطب بأحدث المختبرات المعيارية وبفضاءات مكتبية لتمكينها من تنفيذ برنامجها لأبحاث مرض السرطان والأمراض الأخرى. إذ يتوافق تصميم المركز مع التوجهات الناشئة في الأبحاث الطبية الحيوية متعددة التخصصات، مما يشجع على التواصل وتبادل المعلومات، ويوفر فضاءات عمل مرنة يغمرها الضوء تتمكن فيها فرق البحث من التوسع والتقلّص بسهولة.
وطالب موجزالمشروع بوجود تجاور قريب بين المختبرات ومناطق الدعم الرئيسية والمكاتب. يؤطِّر جناحان متماثلان فناءً مظللاً من شأنه توفير بيئة مريحة للتفاعل الاجتماعي، والذي أصبح بمثابة المركز الاجتماعي للمبنى وممر مُفضّل عبر الحرم الجامعي. وتطل المكاتب على الفناء، وتوفر مجموعة من أشجار قصب الخيزران قدراً من الخصوصية لمن يشغلون هذه الفضاءات. تحرص الأنظمة البيئية على الاستفادة من مناخ مدينة بالو ألتو الذي يعد من أكثر الأجواء اعتدالاً في الولايات المتحدة. تتم تهوية المكاتب بشكل طبيعي في معظم شهور السنة، مع تقديم المساعدة الميكانيكية في الأيام شديدة الحرارة فقط؛ وغالباً ما تتم إضاءة فضاءات المكاتب والمعامل بشكل طبيعي. كانت مسألة الأداء الزلزالي تعد واحدة من الاهتمامات الرئيسية، حيث يقع الحرم الجامعي بالقرب من منطقة صدع سان أندريز وتحتوي المختبرات على معدات شديدة الحساسية. لذا، واستجابةً لذلك، فإن المبنى يستخدم نظاماً إنشائياً يعتمد على جدران قص خرسانية، كما أن الجسور التي تمتد عبر الفناء ترتكز على دعَّامات رقَّاص الاحتكاك لتسمح بحدوث حركة زلزالية بين الجناحين.
كانت جامعة ستانفورد عبر السنين ولا تزال الرائدة في اتباع النُّهَج الجديدة في البحوث العلمية والسريرية. وقد بادرت في الآونة الأخيرة إلى قيادة اتجاه جديد ينطوى على نهج متعدد التخصصات.وقد أسهم مركز أبحاث العلوم السريرية (CCSR) في إحداث أول خطوة للتغيير بجامعة ستانفورد، الأمر الذي عززه مركز كلارك. فقد كان لهذين المبنيين معاً تأثيرٌ ملحوظٌ على عمارة منشآت الأبحاث في جميع أنحاء العالم، إذ أنهما لم يأتيان بمعايير فنية دولية جديدة فحسب، بل ويمثلان أيضاً بيئة أبحاث جديدة غير اعتيادية يتم فيها تشجيع التفاعل بين التخصصات والأفراد كجزء أساسي من الحياة العملية.
المصدر : fosterandpartners.com


















0 التعليقات: